Технические характеристики • Подключение стояков - правое и левое • Теплосчетчик с интерфейсом RS-485 или M-BUS • Диаметры проходных сечений контуров Ду15 (G1/2"), по запросу Ду20 (G3/4") • Номинальный расход через контуры водоснабжения ГВС/ХВС 1,5 м3/час • Максимальная температура отопительной сети 95°C
Область применения: • Системы кондиционирования • Системы отопления • Системы горячего и холодного водоснабжения
Квартирная станция ФОРТА тип КСВ предназначена для подключения квартирной разводки систем ГВС/ХВС к стоякам системы водоснабжения дома.Станция позволяет производить учет воды, потребленного квартирой. Станция поставляется на монтажной раме для установки на стену, в шкаф. Сторона подключения –левая/правая
Два типа исполнения : КСВ – без циркуляции ГВС КСВ(Ц) – с циркуляцией ГВС
Станция КСВ(Ц) оборудована термостатическим балансировочным клапаном для обеспечения комфортной температуры воды у потребителя.
По желанию в комплект поставки станции могут входить: •водосчетчиками с интерфейсом RS-485 или M-BUS для передачи в режиме онлайн информации о расходе ресурсов на системы АСКУЭР. •компенсаторами гидроударов •редукторы давления •распределительный шкаф
Диаметры проходных сечений контуров систем водоснабжения станции по умолчанию имеют размер Ду15 (G1/2"), по запросу Ду20 (G3/4")
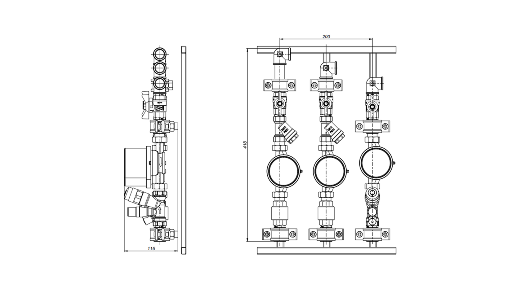
Квартирная станция для системы отопления
Квартирная станция ФОРТА тип КСО предназначена для подключения двухтрубной горизонтальной системы отопления квартиры к стоякам системы отопления дома. Станция позволяет производить автоматическую балансировку системы отопления и учет тепла, потребленного квартирой. Станция устанавливается на стену и подключается к стоякам системы отопления. К выходам станции подключается квартирная горизонтальная система отопления.
Станция производится в исполнениях: -с правым и левым подключением стояков.
Два типа исполнения : КСО – с ручным балансировочным клапаном КСО(А) – автоматическим балансировочным клапаном
По желанию в комплект поставки станции могут входить: •теплосчетчик с интерфейсом RS-485 или M-BUS •распределительный шкаф
Диаметры контуров систем отопления станции по умолчанию имеют размер Ду15 (G1/2"), по запросу Ду20 (G3/4")
Квартирная станция для систем отопления и водоснабжения
Квартирная станция ФОРТА тип КСОВ с узлом присоединения квартирной системы отопления и водоснабжения предназначена для подключения квартирной разводки систем отопления и ГВС/ХВС к стоякам системы отопления и водоснабжения дома. КСОВ позволяет производить автоматическую балансировку системы отопления; учет тепла и воды, потребленного квартирой. Также предусмотрена циркуляция системы горячего водоснабжения с целью обеспечения комфортной температуры воды у потребителя. Станция производится в исполнениях: -с правым и левым подключением стояков.
При использовании квартирной станции значительно упрощается проектирование и наладка систем отопления и водоснабжения многоквартирных домов.